声学楼论坛技术交流区室内声学与噪声控制室 → 听音室的低频特性和传输响应


  共有6076人关注过本帖树形打印复制链接

主题:听音室的低频特性和传输响应

美女呀,离线,留言给我吧!
info1010
  1楼 | 信息 | 搜索 | 邮箱 | 主页 | UC


加好友 发短信
等级:新手上路 帖子:6 积分:47 威望:0 精华:0 注册:2009-10-17 1:11:23
听音室的低频特性和传输响应  发帖心情 Post By:2009-10-17 19:04:52 [只看该作者]

根据图中给出的尺寸,在高度方向有60Hz左右驻波,如果在顶板上有该频律的吸声构件就好了。
在扬声器附近的声阻抗特性有点怪。测过听音点的非相干信号的传输响应吗,能否看看。
如果扬声器箱的位置可调,也许更主动。
用吸声书橱是个好主意。混响时间如果控制到至少63Hz就好了,想想用的低音箱的频响。
以上是对管教授的听音室的几个问题。

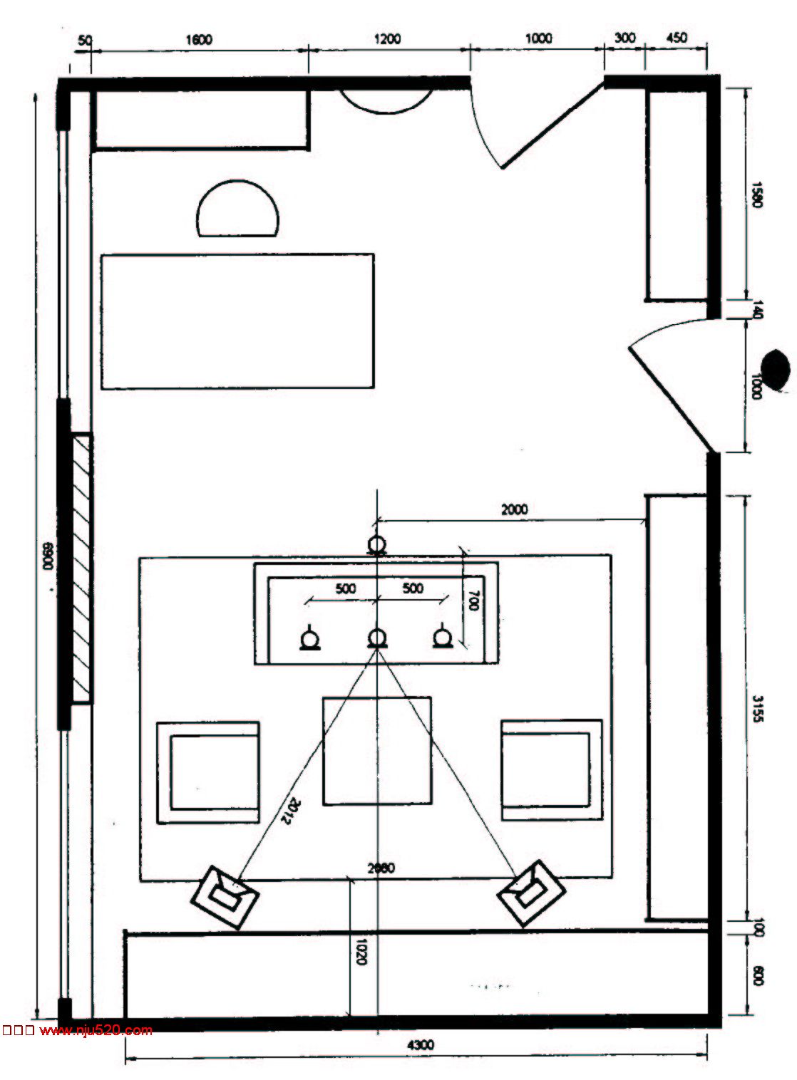
我想介绍另一间由办公室改造的办公-听音多用途的房间。长,宽,高尺寸分别为6.9m;4.7m;2.9m.
从平面图上看,一端为办公,(上部,见照片);另一端为听音(下部,见照片);
混响时间的改前(上曲线,见图)和改后(下曲线,见图)都列出,是从50赫开始测的。
传输响应的改前(曲线 a,见图)和改后(曲线b,见图)也都列出。
 平面图上的左边是两扇玻璃窗,有窗帘,窗之间是一块白色平面型低频吸声材料,同时可作为投影屏。音箱的附近都是宽频带吸声构造。右面墙上和办公桌后是书柜,书柜是由低,中,高频吸声构造做成的。顶部安装了低频吸声构造。地上有地毯。低频吸声构造的最低频率到40/50赫。
[此贴子已经被作者于2009-10-23 01:42:13编辑过]

 回到顶部
帅哥哟,离线,有人找我吗?
hothuo
  2楼 | 信息 | 搜索 | 邮箱 | 主页 | UC


加好友 发短信
等级:新手上路 帖子:78 积分:674 威望:0 精华:0 注册:2006-8-4 14:31:54
  发帖心情 Post By:2009-10-17 20:10:13 [只看该作者]

图呢?

 回到顶部
帅哥哟,离线,有人找我吗?
mmc
  3楼 | 信息 | 搜索 | 邮箱 | 主页 | UC


加好友 发短信
等级:新手上路 帖子:131 积分:849 威望:0 精华:0 注册:2009-7-23 1:01:54
  发帖心情 Post By:2009-10-17 20:58:02 [只看该作者]

没图

 回到顶部
美女呀,离线,留言给我吧!
info1010
  4楼 | 信息 | 搜索 | 邮箱 | 主页 | UC


加好友 发短信
等级:新手上路 帖子:6 积分:47 威望:0 精华:0 注册:2009-10-17 1:11:23
  发帖心情 Post By:2009-10-18 20:11:15 [只看该作者]

不好意思,我是刚来的。放错了地方。这是对《一间极具吸引力的听音室---访管善群教授〉一文发的。图在该文内。

 回到顶部
帅哥哟,离线,有人找我吗?
tvman
  5楼 | 信息 | 搜索 | 邮箱 | 主页 | UC


加好友 发短信 电视人
等级:贵宾 帖子:38 积分:361 威望:0 精华:0 注册:2009-8-17 11:57:44
  发帖心情 Post By:2009-10-22 18:06:25 [只看该作者]

应楼主info1010之要求,这里协助楼主发布相关图片:
 

一间长6.9 m、宽4.7m、高2.9 m的办公室(平面图见图1),改建为办公室(后部,见图2)兼听音室(前部,见图3)。


图片点击可在新窗口打开查看此主题相关图片如下:pic2.jpg
图片点击可在新窗口打开查看
图1


图片点击可在新窗口打开查看此主题相关图片如下:pic1.jpg
图片点击可在新窗口打开查看
图2


图片点击可在新窗口打开查看此主题相关图片如下:pic3.jpg
图片点击可在新窗口打开查看
图3
 

混响时间(其中上曲线为改建前的;下曲线是改建后的)

图片点击可在新窗口打开查看此主题相关图片如下:pic4.jpg
图片点击可在新窗口打开查看
 

传输响应(其中曲线a为改建前的;曲线b为改建后的)


图片点击可在新窗口打开查看此主题相关图片如下:pic5.jpg
图片点击可在新窗口打开查看

[此贴子已经被作者于2009-10-22 21:45:59编辑过]


Facta Non Verba
 回到顶部
帅哥哟,离线,有人找我吗?
zhaojianhu
  6楼 | 信息 | 搜索 | 邮箱 | 主页 | UC


加好友 发短信
等级:新手上路 帖子:8 积分:164 威望:0 精华:0 注册:2006-2-4 17:47:38
  发帖心情 Post By:2009-11-20 12:10:47 [只看该作者]

你的房间主要简正频率分布为:59Hz、25Hz、37Hz(0.0.1/0.1.0/1.0.0);119Hz、50Hz、73Hz(0.0.2/0.2.0/2.0.0)。请针对这些频率进行处理(扩散、吸声)。

 回到顶部